Sevilla 713

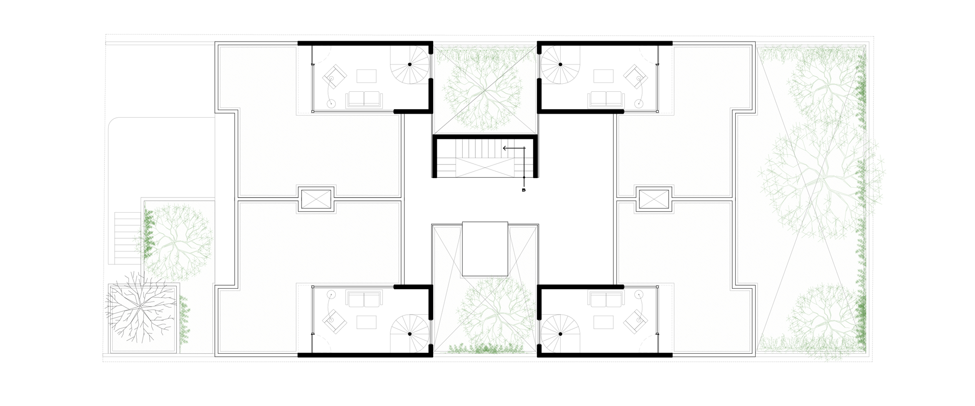
Edificio de departamentos ubicado en la colonia Portales Sur, en la Ciudad de México. Se compone de 15 departamentos (11 de dos recámaras y 4 penthouse) en 4 niveles. El nivel de acceso está elevado sobre el nivel de la banqueta para dar privacidad a las viviendas. El frente, fondo y la parte media de este predio rectangular se aprovechan para generar zonas verdes jardinadas para el conjunto.

ARQSTUDIO 2024 

SEVILLA 713