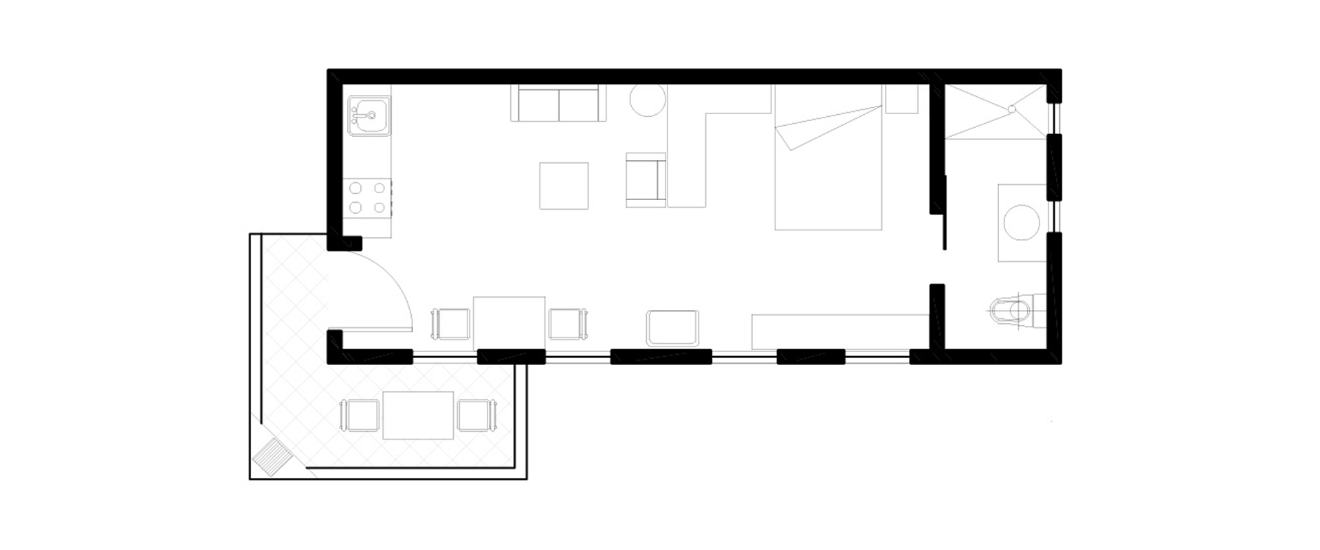
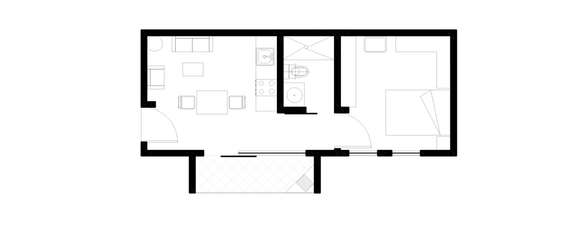
Rincón del Lago

Conjunto de cabañas en una zona privada en el municipio de Valle de Bravo. Cada cabaña cuenta con área de cocina, estancia y dormir, y en el conjunto se consideran zonas de asadores comunes que invitan al disfrute de la belleza natural del sitio.

ARQSTUDIO 2024 

RINCÓN DEL LAGO