Conjunto TÉ 836

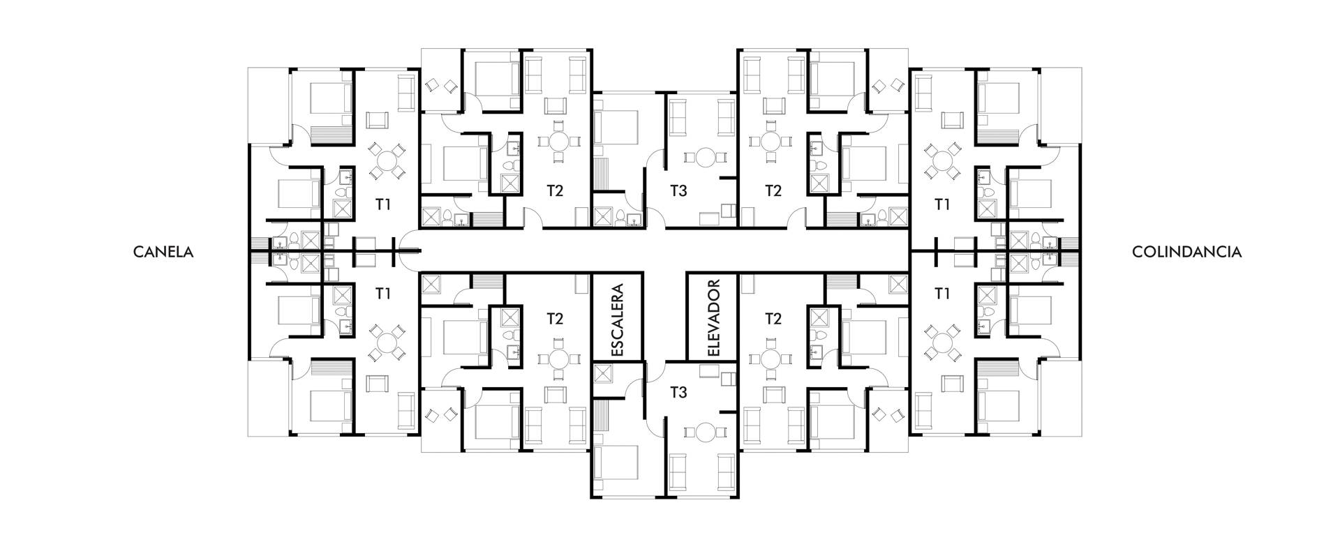
Conjunto de usos mixtos ubicado en la Alcaldía Iztacalco. El desarrollo se compone de 5 torres de 19 niveles de uso habitacional desplantadas sobre un basamento de dos niveles comerciales que ofrecen un desarrollo integral con espacios comunes para los residentes; impulsando el desarrollo de actividades comerciales y de servicios para la zona. Cuenta con 4,200m2 de áreas verdes y zonas de esparcimiento. De igual forma, se destinó un porcentaje de área del terreno como donación para espacio público verde dentro del predio donde se desarrollará el proyecto.

ARQSTUDIO 2024 

CONJUNTO TÉ 836