Chilpa 15

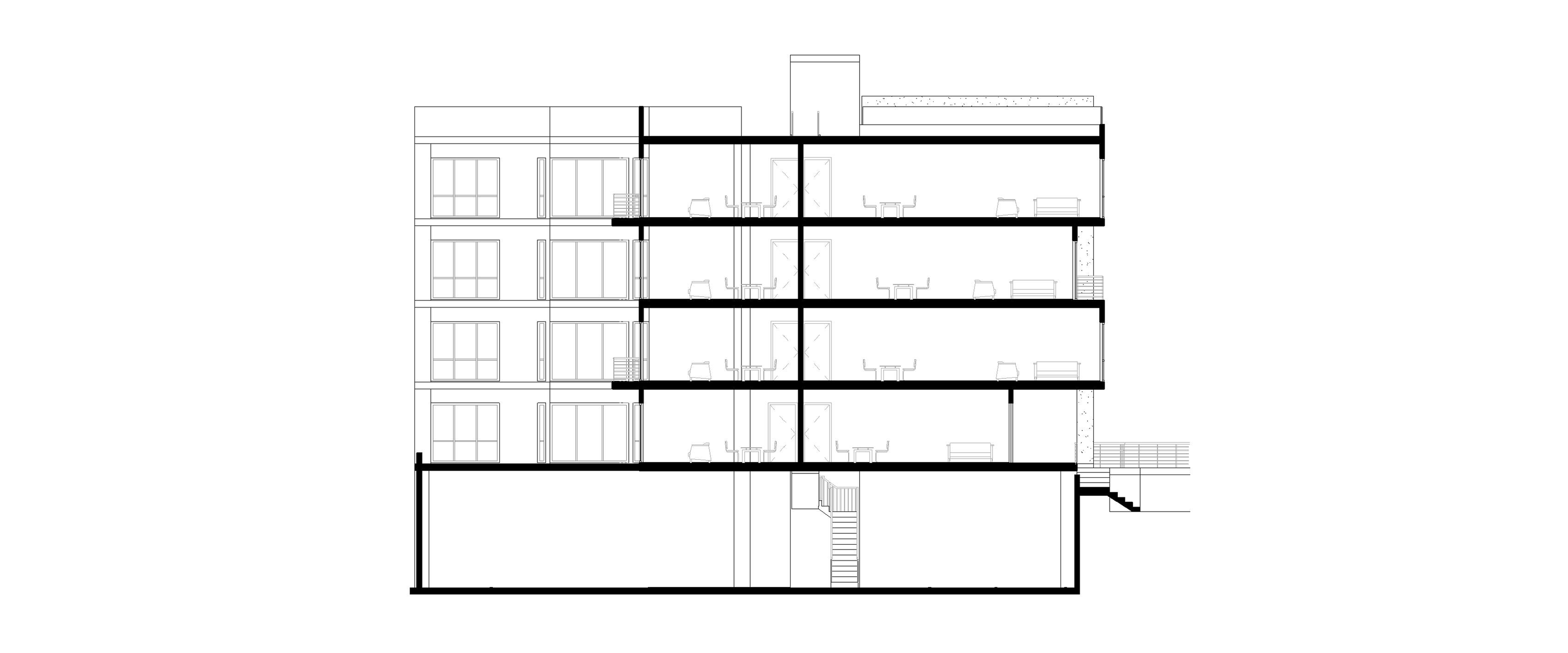
Conjunto residencial de 24 departamentos en la colonia Sta. María Nonoalco de la Ciudad de México. Los departamentos se conforman a partir de remetimientos de un gran volumen para satisfacer las necesidades de iluminación y ventilación que al mismo tiempo logran ritmo y la generación de claroscuros en las fachadas.

ARQSTUDIO 2024 

CHILPA 15